吹き抜けが印象的な家
| お客様情報 | M様 |
|---|---|
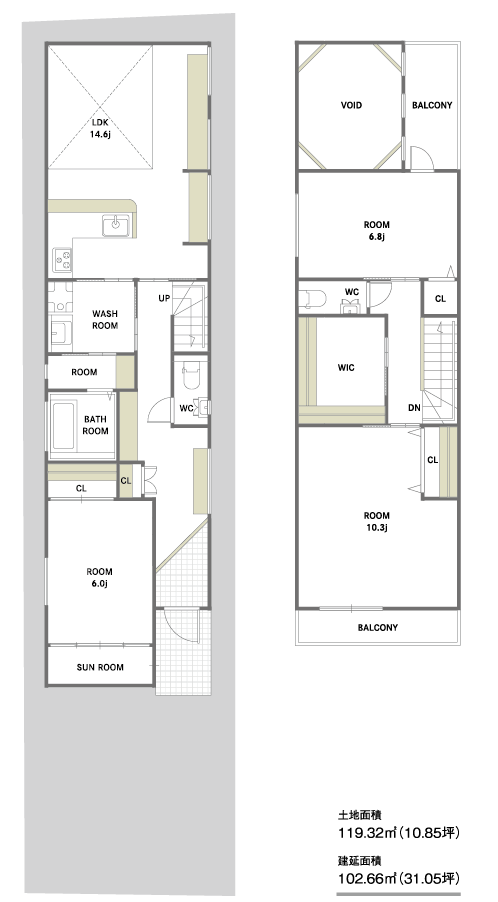
| 土地面積 | 119.32㎡(36.09坪) |
| 延床面積 | 102.66㎡(31.05坪) |
| 所在地 | 大阪府住吉区 |
住み慣れた家に、新しい性能を
M様は住み慣れた土地に建つ旧家を建て替えられました。建て替えるに当たり極力段差を少なくしたり、手すりを新たに取り付けるなど、日々使いやすい工夫を随所に取り入れました。また、床暖房や断熱性能を上げることで、広い空間を作りながらも、空調が効きやすい快適な住まいに生まれ変わりました。

木目を感じる、開放感と暖かみのあるデザイン
01. バリアフリーも考えた日当たりのよいサンルーム
お客様からの要望で、天候を気にせず干せるサンルームを設置。洋室との間の段差をなくしたバリアフリー設計となっています。

02. 玄関スペース
「上がり框」を斜めにして、玄関スペースを広く使えるよう工夫しました。向かって左側にはハンガーパイプを設置し、お客様が来られた際に上着などをかけておけるようにしました。


03. エントランス
エントランスは段差を低くしたり、手すりを設置するなど、日々使いやすいように設計しました。

04. LDKカウンター
LDKの窓際にはカウンターや収納棚を設けてあり、スペースをムダなく活用できます。窓があるので採光もよく、手元を照らしてくれるライトもあるので、読書や書き物もできます。

05. 2WAY動線で家事がラクラク
写真の手前がキッチン、向かって右側が洗面室、左側が廊下になっています。洗濯をする洗面室からキッチンへのアクセスがしやすく、日々の家事が効率的にできます。

06. L字型キッチン
建物の広さに限りがあるので、空間を有効に使えるL字型キッチンを採用しました。洗面室へは廊下とキッチンから入れる2WAY動線。お料理の合間にお洗濯もできます。

07. 解放感があるのに断熱性の高いLDK
1階LDKは、天井が2階の高さまである「吹き抜け」になっています。「吹き抜け」は開放的な空間になる反面、空調が効きにくくなることがあります。この家は窓のサッシや断熱材を厚くすることで断熱性能を上げ、さらに床暖房も取り入れることで、「開放的な空間」と「空調の効きやすさ」を両立させました。

08. 暖かな印象の階段ホール
2階の階段ホールは、階段上部の空間が広く抜けているので、壁がある状態と比べて開放的な印象をもたらします。階段ホールの照明はダウンライトを使用しており、天井がフラットになっているので、凹凸がなく空間がスッキリとした印象になります。

09. 木目調のアクセントクロス
洋室は10.3帖の広々空間。木目調のアクセントクロスが印象的です。

10. バルコニー
バルコニーは壁を高くし、プライバシーに配慮しました。

Contact
和光ホームズへのお問い合わせ・資料請求はこちらから。