住む人みんなにやさしい家
| お客様情報 | Y様 |
|---|---|
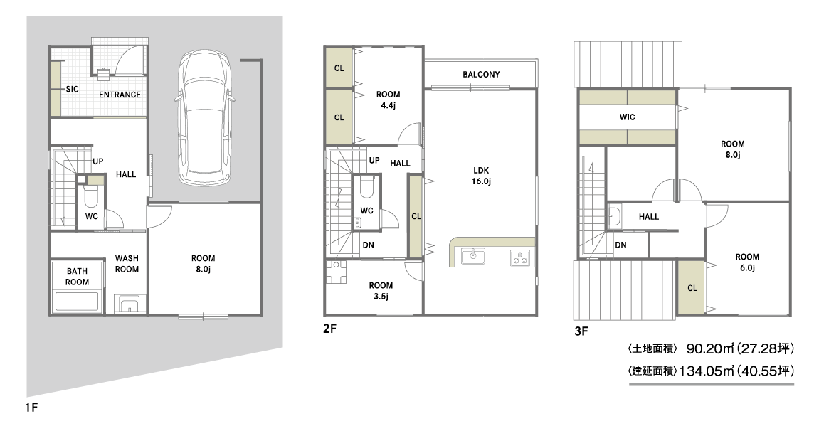
| 土地面積 | 90.20㎡(27.28坪) |
| 延床面積 | 134.05㎡(40.55坪) |
| 所在地 | 大阪市東成区 |
人も動物も安心できる家
Y様は自身の健康上の理由と、将来的に家の中で動物と暮らしたいという思いがあり、人間や動物への影響が少ない壁紙や仕様で家の中を設計しました。抗菌・消臭効果があるとされる漆喰壁を採用したり、「環境アレルゲン」を抑制するタイルをお部屋や玄関に使用し、人間にも動物にもやさしいお家が完成しました。

健康面にやさしい素材や住空間
01. 外から花粉等が入るのを玄関で抑える
1階エントランス部分にも健康面を配慮した設計が備わっています。玄関フロアに「アレルピュア」というタイルを使用し、外からの花粉の影響を受けやすい玄関の環境アレルゲンを抑制します。機能的にもこだわり、シューズインクローゼットを設けるなど、全体的にゆとりのある広々としたスペースをとっています。


02. 環境や人にやさしい漆喰の壁を採用
1階、8帖ある広めの洋室は、壁が全面漆喰の塗り壁になっています。漆喰独特の風合いが感じられるだけでなく、抗菌・消臭効果も期待できるので、長く過ごす部屋をクリーンな空間に保ちます。

03. LDKの壁全体を漆喰で統一しました
2階のLDKの壁は全面に漆喰の塗り壁を採用しています。一番長く過ごすリビングルームだからこそ、健康面に配慮した素材を選びました。


04. LDKの壁全体を漆喰で統一しました
トイレにも調湿効果のある「エコカラット」の壁を採用しています。

05. 人にも動物にも配慮したやさしい住空間
3階の居室2部屋は、壁の下半分を「アレルピュア」のタイル張りにした特徴的なデザインで、環境アレルゲンを抑制する効果があります。また将来的に、動物と住む目的の小さな部屋も設けています。

06. 傷つきにくい壁
動物が住む予定の、小さな部屋の壁紙は、猫などが爪でひっかいてもキズがつきにくいものを全面に使用しています。

07. 手洗い場
階段を上がってすぐの場所に手洗い場を設けました。外出から帰ってきた時の手洗いを習慣にできます。

08. 動物のための扉も採用
居室の扉には、猫などの小動物が出入りできる専用の扉を設けています。

Contact
和光ホームズへのお問い合わせ・資料請求はこちらから。