インテリアのバランスが絶妙すぎる家
| お客様情報 | S様 |
|---|---|
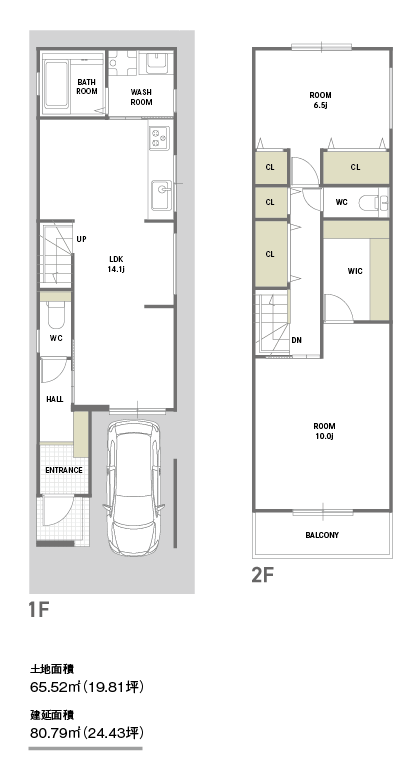
| 土地面積 | 65.52㎡(19.81坪) |
| 延床面積 | 80.79㎡(24.43坪) |
| 所在地 | 大阪市住之江区 |
シンプルでまとまりのある家
S様は旧家のあった土地に新しいお家を建てました。法的な事情で家の面積は小さくなりますが、それを補ってなお余りある素敵なお住まいが誕生しました。 黒(濃いグレー)を基調として色決めをしたスタイリッシュな印象の各お部屋。家具や小物もサイズ感・雰囲気を慎重に選ぶことで、家の色と家具等がセンスよくまとまった、すべてのバランスが絶妙な家に仕上がりました。

黒を基調としたモダンなデザイン
01.家具と家が調和した絶妙な住空間
建て替え前は、経年による外壁の傷みが気になる印象でしたが、新しく建ったお家は黒を基調としたモダンで洗練された印象に。十分な駐車スペースも取ることができました。

02.玄関
玄関は限られたスペースを最大限に生かし、家族全員分の靴が収納できる収納を作ることができました。タイル調のフロア材で洗練された印象に仕上がりました。

03.リビングスペース
玄関からLDKに入ってすぐのリビングスペース。限られたスペースをセンス良く生かし、家具のサイズや高さ・色などもバランスよくコーディネートされています。

04.グレーとブラックで統一感が出るダイニング
ダイニングは、構造上必要な壁があることで、リビングとの間をゆるく仕切るような配置となっています。折り下げ天井(黒い部分)はキッチンから続いており、LDKのアクセントとなっています。印象的な丸井照明は高さを絶妙に配置されました。

05.ニッチ
ニッチの中にインターフォンやスイッチ類をまとめました。スイッチなどで壁に出っ張りができないので、LDK全体がスッキリとした印象になります。

06.キッチン
キッチンは全体の色を折り下げ天井とコーディネートされており、統一感のある印象となっています。カウンタータイプとどちらにするか悩んだそうですが、「スペースが広く取れるので壁付けにしてよかった!」と仰っています。家電類もカラーを揃え、統一された印象になりました。

キッチンの窓際にさりげなく置かれた鉢植えは、カバーとなる外側の鉢をブラックで揃えるというこだわりが。

07.モノトーンが落ち着いた印象のリラックス空間
広い方の寝室はアクセント壁に他の部屋と同様の色味の物をチョイスし、統一感が感じられる工夫をしています。
ベッドと反対側にはワークスペースを作り自宅でも仕事ができるようにされました。ウォークインクローゼットも大容量です。

08.居室
少し小ぶりな居室はお子様の部屋として使用されます。お子様が選ばれたアクセント壁も、他の部屋と統一感がありスタイリッシュな印象で、k具なども部屋全体とトーンが似たものを選ばれています。

Contact
和光ホームズへのお問い合わせ・資料請求はこちらから。