どこを切り取っても画になる家
| お客様情報 | O様 |
|---|---|
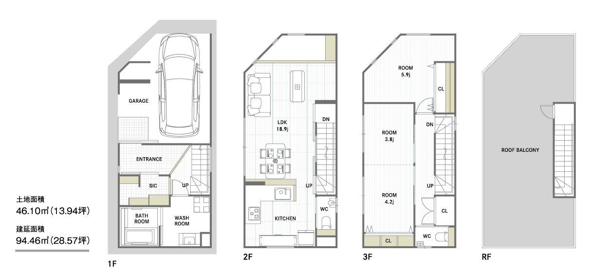
| 土地面積 | 46.10㎡(13.94坪) |
| 延床面積 | 94.46㎡(28.57坪) |
| 所在地 | 大阪市北区 |
お客様のこだわりを叶えた家
O様邸は、敷地面積が限られる都心にありながらも、空間の使い方を工夫したり、インテリアや小物など 細部にまで独自のセンスを発揮され、ご自身のこだ わりを叶えました。都心でありながらも敷地の大きさ など気にならない「どこを切り取っても画になる家」 が誕生しました。

木目をアクセントにした楽しい空間
01.ガレージ
ガレージの天井や壁の一部は、木目がアクセントとなった「軒天」となっています。全て本物の木材を使用しているので、天然のやさしい風合いを感じることができます。

02.郵便受け
ガレージの壁をカットした壁面に、明るいグリーンが可愛らしい郵便受けを取り付けています。手元を明るく照らすマリンランプの相性も絶妙です。

03.エントランス付近
1階部分は、木目を大腿に使用してアクセントに したり、限られた空間を少しも無駄にしない、居心地の良い住まいが 実現しました。

04 .スタイリッシュで開放的な階段ホール
玄関を入り、2階へとつながる階段は「ストリップ階段」になっており開放的な空間を得られます。玄関の「上がり框」をあえて斜めにデザインしてあったり、床もヘリンボーン状にするなど、限られた空間を感じさせない工夫が散りばめられています。

05.パーツにこだわったデザイン
ルーパーが印象的な扉の向こうはシューズインクローゼットになっており、エントランスのアクセントに。ダブルフェイスのウォールクロックも印象的です。

06.洗面室
洗面室の扉、壁タイルもインテリアになじみながらも、さりげないアクセントになっています。


07.扉
扉にもいろいろなこだわりが感じられます。トイレの扉は、上部だけをチェッカーガラスにしてあるので、採光が良くなり明るい印象になります。

08.小上がりスペースが楽しいリビングルーム
1階からストリップ階段を上がってくると、いったん扉がありLDKに入ります。解放感があるのでリビングに階段を直結するのも検討されましたが、小さいお子様に配慮にて壁と扉を設けました。その代わりに室内窓を設けたので、他にはないユニークな表情のリビングになりました。

09.プライベート空間
3階は家族それぞれが過ごす部屋があるプライベート空間に。アクセントクロスを壁に入れて印象的な部屋にしてあったり、個性的な照明もアクセントとして味わい深いです。

10.屋上が遊び場になるルーフバルコニー
都心の住宅では、庭を設けることができないことが多いですが、ルーフバルコニーを屋上に作ることで、バーベキューやガーデニング、夏場はプールを広げて遊ぶなど様々な用途に使えます。お子様の安全を考えて手すり壁の上にフェンスを追加しました。

Contact
和光ホームズへのお問い合わせ・資料請求はこちらから。